Skip to Content

108 Cherokee Cove

Red Bud B

$644,900

3

3

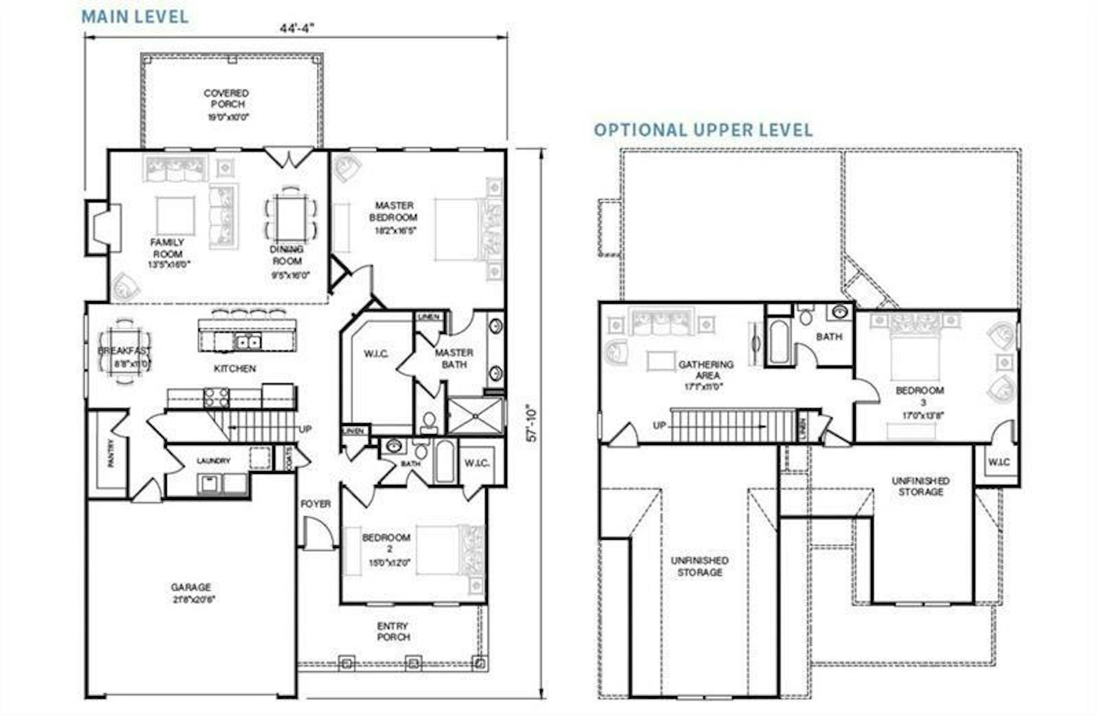
2,428 sqft

2

About

JOIN US FOR OUR MODEL HOME SHOWCASE THIS WEEKEND!!!**Move In Ready!! An Inspired Expression of Mountain Elegance at Lake Arrowhead.** You’ve worked for this moment — now it’s time to enjoy it.This beautifully finished ranch home in Lake Arrowhead offers effortless single-level living with an open, inviting design created for both connection and comfort. The spacious great room flows seamlessly into a modern kitchen with an expansive island, abundant cabinetry, and elegant finishes that feel both refined and welcoming.The primary suite provides a peaceful escape at the end of the day, while additional flexible spaces adapt to visiting family, entertaining friends, or pursuing your passions.Everything is complete. Landscaping, finishes, appliances, and smart-home features are already in place — allowing you to move in immediately and begin enjoying lake days, championship golf, scenic walking trails, clubhouse dining, and a vibrant social calendar. Builder offering a 2-10 warranty for added peace of mind.No waiting. No projects. Just possibility. Schedule your private showing and experience the lifestyle for yourself.

Sales and Information Center

770-720-2700

CONTACT US

Leave this field empty