Skip to Content

110 Red Cloud Walk

Cedarcrest II

$403,900

3

3

1,860 sqft

0

About

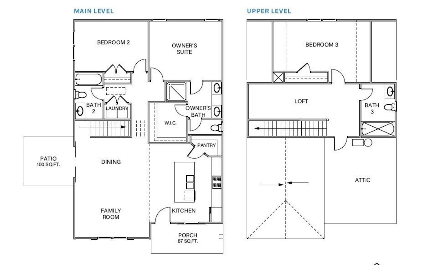
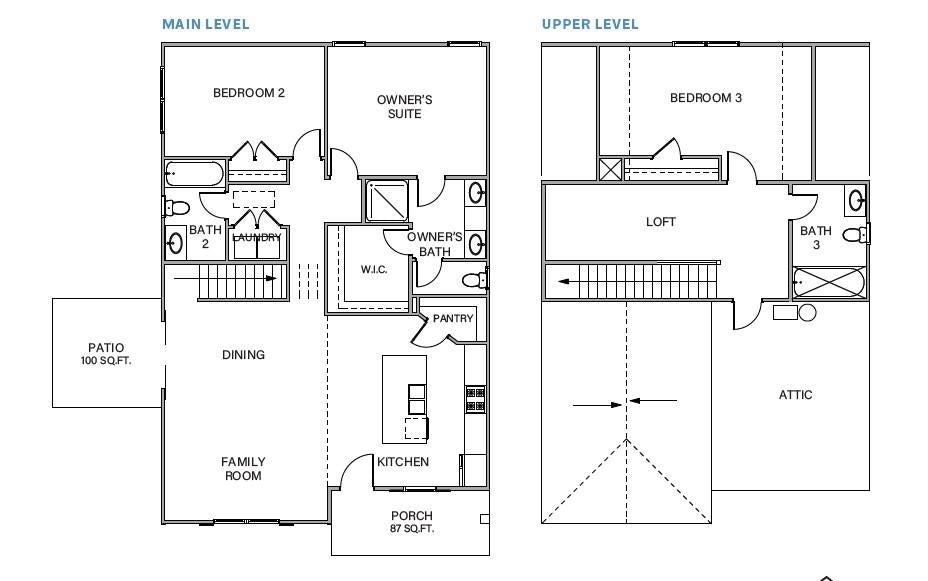
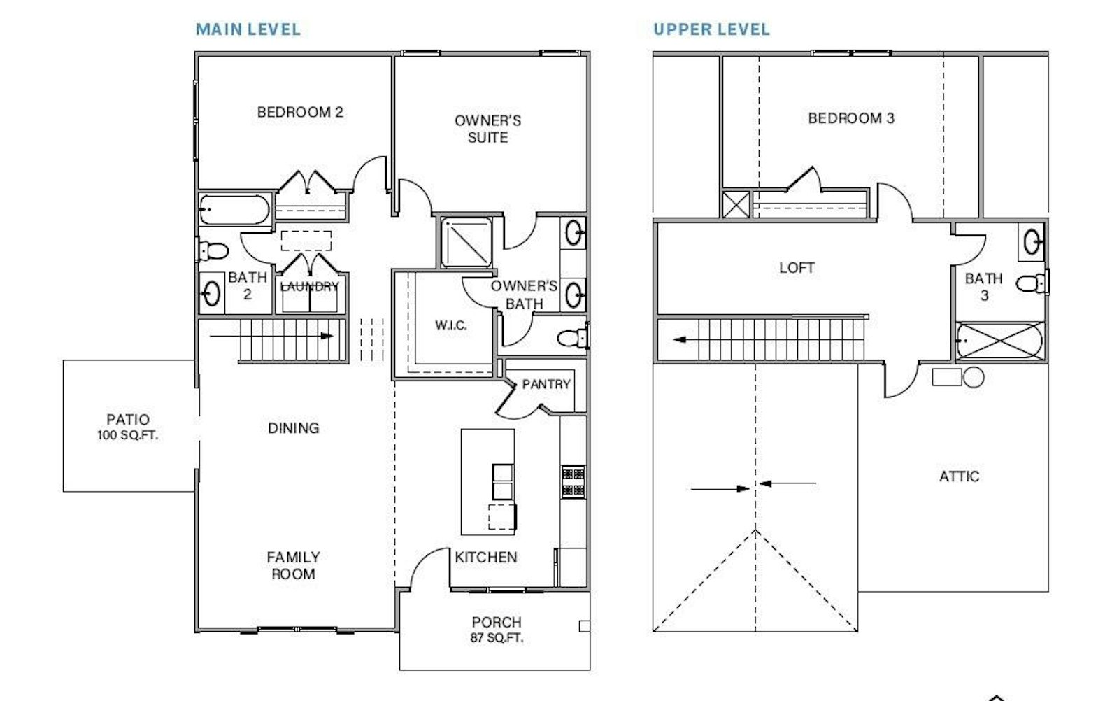
MOVE IN READY!! Discover the perfect blend of tranquility and adventure in this beautifully master on main appointed 3-bedroom, 3-bathroom with Loft mountain cottage, nestled in the exclusive gated community of Lake Arrowhead offering breathtaking views of the surrounding mountains and a serene lake. Open Concept kitchen with loads of storage with walk-in pantry and wall pantry, carpet in all bedrooms, LVP throughout main living area and loft. Easy access to the South Gate and the marina, walking distance to Red Cloud Park Sports Complex.

Sales and Information Center

770-720-2700

CONTACT US

Leave this field empty