Skip to Content

113 Elder Court

Juniper II A

$458,900

3

2

1,695 sqft

2

About

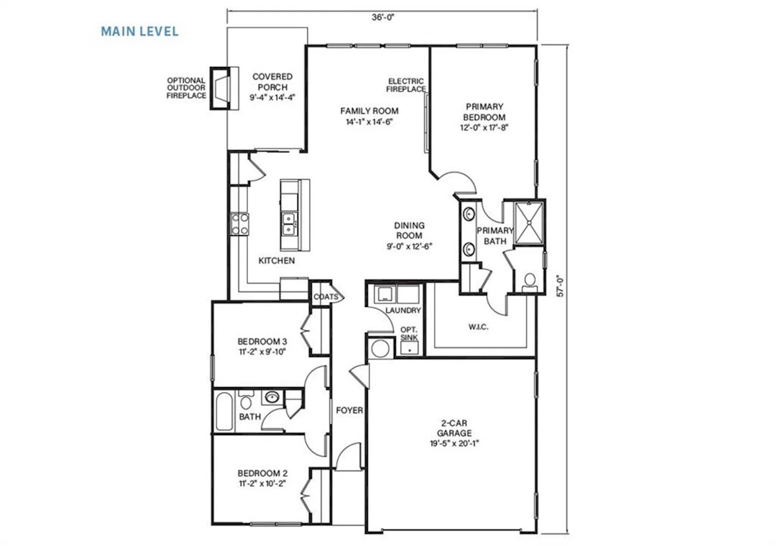
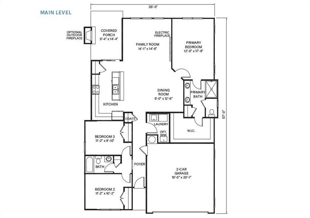
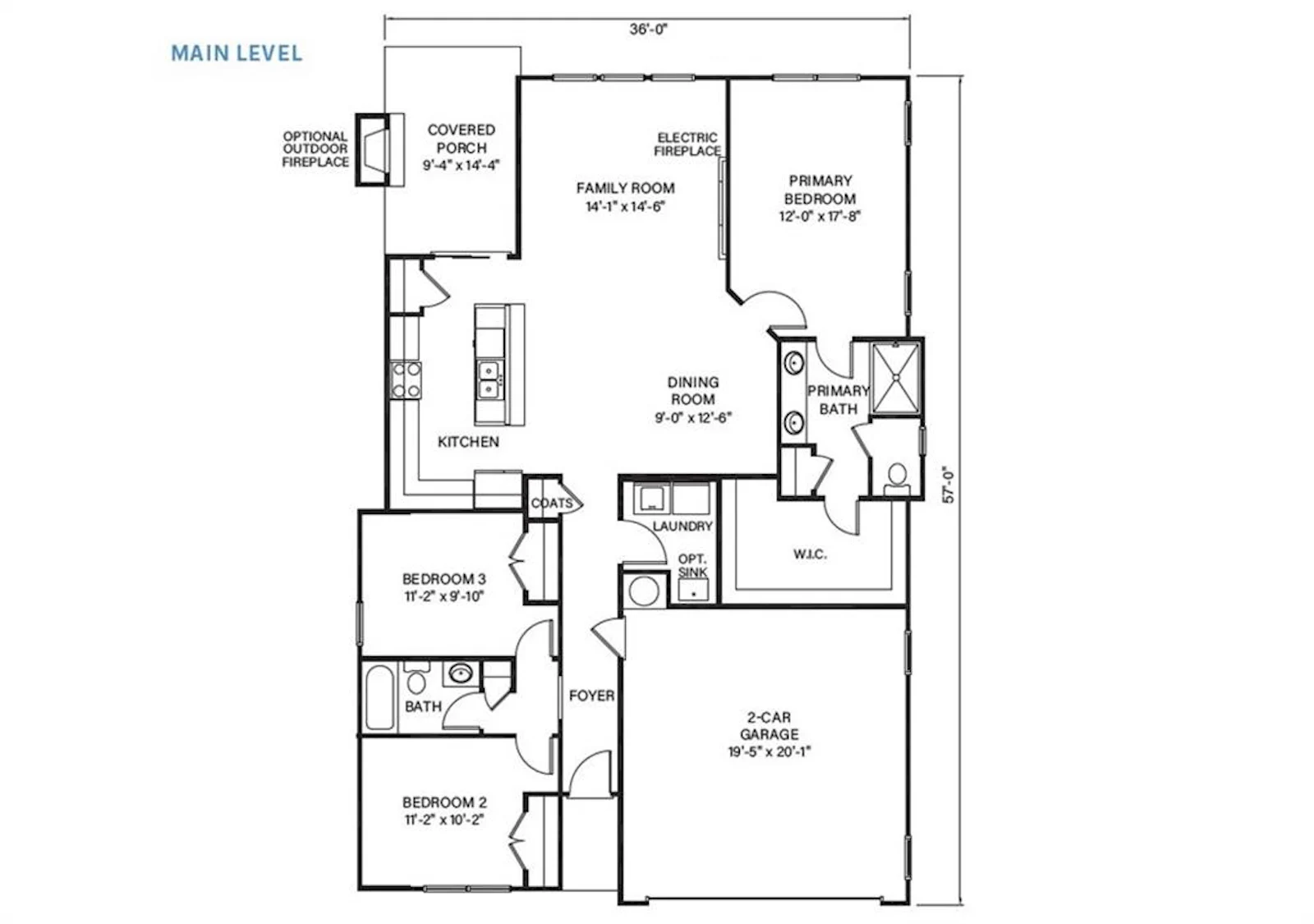
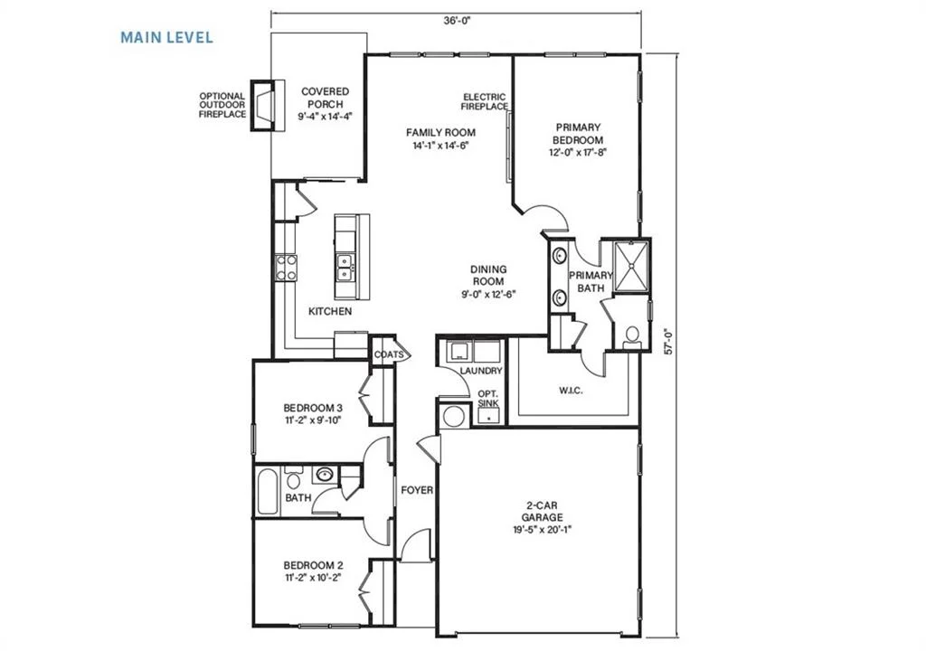
JOIN US FOR THE LAST WEEKEND FOR OUR MODEL HOME SHOWCASE!!! **NEW CONSTRUCTION** Move-in-Ready ranch plan by TIH Homes with a full unfinished basement, nestled in the coveted Woodlands at Lake Arrowhead. This charming 3-bedroom, 2-bath home offers an open-concept layout that seamlessly connects the living areas, highlighted by a covered front porch and a rear covered deck with serene, wooded mountain views. The gourmet kitchen boasts granite countertops and ample cabinetry, perfect for both everyday living and entertaining. The private master suite features a double vanity, spacious walk-in closet, and an expansive shower, creating a peaceful retreat. Enjoy the unmatched lifestyle of Lake Arrowhead, voted one of the Top 100 Places to Live—come see why this extraordinary community is the ideal place to call home. Builder offering a Greater Atlanta Home Builders Warranty for added peace of mind.

Sales and Information Center

770-720-2700

CONTACT US

Leave this field empty