Skip to Content
Find Your Home
Move-In Ready Homes
Home Styles
Customizable Luxury Homes
Single Family Ranch Homes
Townhomes
View All Home Styles
Neighborhoods
Woodlands
Fort Gibson at Woodlands
Waterview Townhomes
Timber Ridge
View All Neighborhoods
Lifestyle & Amenities
Location
Area Information
Cherokee County
About
Johnson Development Corp
JDC Video
Builders
Testimonials
News & Events
News
Events
Events Calendar
Contact
Request Information
Directory
Sequoia
Questions?
Contact Us Today!
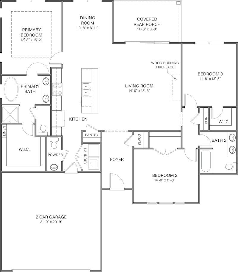
3
2
1,635 sqft
2
TIH Homes
Print Floorplans
Sales and Information Center
770-720-2700
CONTACT US
Leave this field empty
First Name *
Last Name *
Email Address *
Phone *
SUBMIT
Floorplans
Main Floor